
MFH-V-09-24
456 m2
20 Räume
475 m2
0€
456.00 m2
18 Schlafzimmer
4 Bad
20 Räume
24 m2
Das Sanierungsobjekt befindet sich im Herzen von Neustadt an der Orla, direkt am Markt. Die zentrale Lage bietet eine hervorragende Infrastruktur mit kurzen Wegen zu Geschäften, Restaurants und öffentlichen Verkehrsmitteln. Das Gebäude liegt in einem ausgewiesenen Sanierungsgebiet, was potenzielle Fördermöglichkeiten für Investoren mit sich bringt. Objektdetails: Baujahr: 1920 Nutzungseinheiten: 3 groÃzügige Wohneinheiten, jeweils mit ca. 145 m² Wohnfläche 1 Gewerbeeinheit (ehemalige Bank) mit Potenzial für vielfältige Nutzungsmöglichkeiten Besonderheiten: Das Objekt ist vollständig unterkellert Ein Innenhof ist vorhanden, mit direkter Zufahrtsmöglichkeit Werkstatt und weitere Abstellräume befinden sich im AuÃenbereich und bieten zusätzlichen Stauraum Jede Wohneinheit verfügt über einen kleinen Balkon, der einen Blick auf den Innenhof ermöglicht Gasanschluss ist vorhanden, und jede Einheit kann individuell mit einer eigenen Therme ausgestattet werden Sanierungspotenzial: Für das Objekt wurden bislang noch keinerlei städtische Förderungen für die Sanierung abgerufen, sodass für Kapitalanleger attraktive Fördermöglichkeiten und steuerliche Vorteile bestehen könnten. Fazit: Dieses Sanierungsobjekt bietet Kapitalanlegern eine attraktive Möglichkeit, in eine Immobilie mit Potenzial in bester Innenstadtlage zu investieren. Die Kombination aus Wohn- und Gewerbeeinheiten sowie die Optionen zur individuellen Modernisierung machen das Gebäude zu einem flexiblen Investitionsprojekt mit langfristigem Wertsteigerungspotenzial. Einen virtuellen Rundgang und weiterführende Informationen zu dieser Immobilie erhalten Sie auf unserer Homepage www.hauptmakler.de oder schreiben Sie uns eine Email an info@hauptmakler.de oder rufen Sie uns an unter +49 3681 723981.
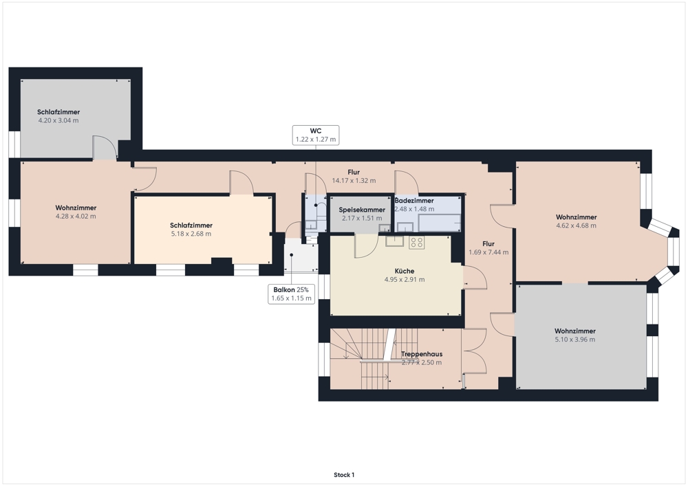
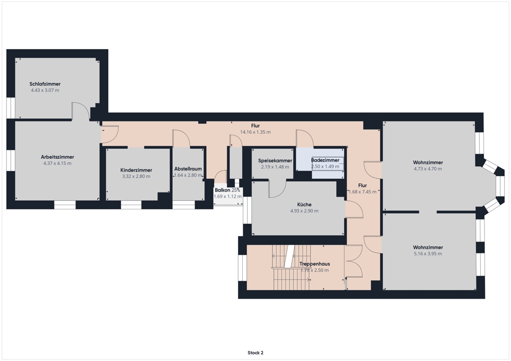
Jede der drei Wohnungen im Gebäude ist groÃzügig geschnitten und bietet eine komfortable Aufteilung: Küche: Eine geräumige Küche mit angrenzender Speisekammer, ideal für Stauraum und Vorratshaltung. Wohn- und Essbereich: Ein groÃes Wohnzimmer mit angrenzendem Esszimmer, das einen direkten Blick auf den historischen Marktplatz bietet. Schlafzimmer: Drei Schlafzimmer, die alle nach hinten zum ruhigen Innenhof ausgerichtet sind, sorgen für eine ruhige Atmosphäre. Balkon: Jede Wohnung verfügt über einen kleinen Balkon zum Innenhof; die Dachgeschosswohnung hat zudem einen französischen Balkon mit Blick auf den Marktplatz. Bad und WC: Ein kleines Wannenbad und ein separates WC runden die Ausstattung ab. L-förmige Anordnung: Die L-Form der Wohnung ermöglicht eine optimale Raumaufteilung, bei der die Schlafräume abseits des Wohnbereichs liegen und somit mehr Privatsphäre bieten. Diese Aufteilung macht die Wohnungen attraktiv für Familien und Paare, die Wert auf groÃzügige Wohnflächen und eine zentrale Lage legen. Die Gewerbefläche im Sanierungsobjekt ist funktional gestaltet und bietet vielfältige Nutzungsmöglichkeiten: Büros: Drei separate Büroräume, ideal für Arbeits- oder Besprechungszwecke. Aufenthaltsraum: Ein Aufenthaltsraum für Pausen oder Besprechungen. WC: Ein separates WC für Mitarbeiter und Kunden. Präsentationsraum: Ein groÃer Präsentationsraum, der sich gut für Meetings, Schulungen oder Ausstellungen eignet. Kellerzugang: Direkter Zugang zum Keller, der früher von der Bank für SchlieÃfächer genutzt wurde und zusätzliche Lagermöglichkeiten bietet. Die Gewerbefläche bietet zusätzlich eine Schaufensterfront zum Marktplatz, die für Sichtbarkeit und attraktive Präsentationsmöglichkeiten sorgt. Ein separater Personaleingang ermöglicht einen diskreten Zugang für Mitarbeiter, unabhängig vom Kundenbereich. Diese Kombination aus repräsentativer Lage und praktischer Aufteilung macht die Gewerbefläche besonders interessant für Einzelhandelsgeschäfte, Dienstleister oder Bürobetriebe, die eine zentrale, gut sichtbare Lage mit flexiblen Nutzungsmöglichkeiten suchen.
Neustadt an der Orla ist eine historische Kleinstadt im Osten Thüringens, die zwischen den Städten Jena, Gera und Saalfeld liegt. Sie gehört zum Saale-Orla-Kreis und hat etwa 8.000 Einwohner. Die Stadt ist bekannt für ihre gut erhaltene Altstadt, die von malerischen Fachwerkhäusern, alten Bürgerhäusern und einer Vielzahl von Baudenkmälern geprägt ist. Der zentrale Marktplatz ist das Herz der Stadt und besticht durch seine mittelalterliche Atmosphäre. Hier finden sich das Rathaus im Renaissance-Stil und das berühmte Lutherhaus, in dem Martin Luther 1530 übernachtete. Die Stadtkirche St. Johannis, eine beeindruckende gotische Hallenkirche, prägt ebenfalls das Stadtbild und ist ein beliebtes Ziel für Kulturinteressierte. Neustadt an der Orla bietet eine gute Infrastruktur mit Einkaufsmöglichkeiten, Restaurants, Schulen und medizinischen Einrichtungen, was es zu einem attraktiven Wohnort macht. Die Stadt ist zudem von einer reizvollen Natur umgeben, die zu Wanderungen und Ausflügen in die Umgebung einlädt. Die Nähe zur Orla, einem kleinen Fluss, und das grüne Umland bieten viele Möglichkeiten zur Erholung und Freizeitgestaltung. Verkehrstechnisch ist Neustadt an der Orla gut angebunden: Ãber die BundesstraÃen B281 und B88 sind gröÃere Städte wie Jena oder Gera gut erreichbar, und auch das Netz des öffentlichen Nahverkehrs bietet regelmäÃige Verbindungen in die umliegenden Regionen. Insgesamt verbindet Neustadt an der Orla historisches Flair mit modernem Wohnkomfort und bietet damit eine hohe Lebensqualität in einer attraktiven Umgebung.
Nutzen Sie dieses Formular, um uns Ihre Meinung, Anregung oder Kritik mitzuteilen. Wir werden uns umgehend um Ihr Anliegen kümmern.